



















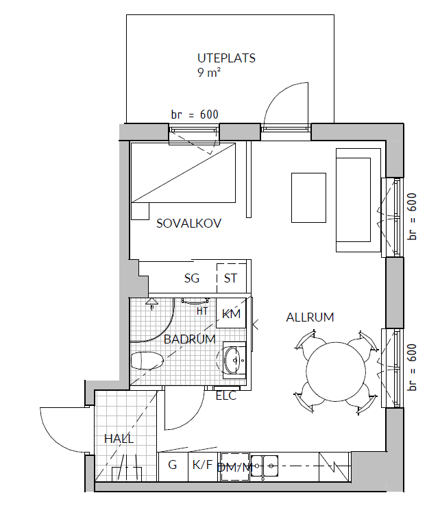
Här har vi en etta på 37 välplanerade kvadratmeter. Köket är fullt utrustat med både diskmaskin och mikrovågsugn och ger även plats för ett matbord. I badrummet finns en kombimaskin för klädvård. Lägenheten har en sovalkov med praktisk skjutdörrsgarderob. Från vardagsrummet når man uteplatsen om 9 kvm.